微信扫码

  • 13805361381

   咨询服务热线 English
 0536-8251160

地埋电缆保护管受力分析及设计要点

分享到:
点击次数:1908 更新时间:2021年09月17日18:22:24 打印此页 关闭

地埋电缆保护管

受力分析及设计要点

朱梦伟 1,王学明 1,张 媛 1,孙 清 2,王虎长 1

(1. 中国电力工程顾问集团西北电力设计院有限公司,陕西 西安 710075 ;2. 西安交通大学,陕西 西安 710049)


摘要:电缆保护管结构设计是一项关乎电缆安全运行的重要环节,埋于地下的电缆保护管受力复杂,因而许多设计人员根据以往经验和常规做法进行保护管设计,未能揭示其作用机理。结合实际工程项目,对人行道及绿化带、行车道下方敷设的管道进行有限元受力分析,揭示了电缆保护管与土体的作用机理,验证了基于经验及常规做法设计方案的可靠性,并介绍了地埋电缆保护管的设计要点,为今后类似工程的设计提供理论基础及技术支持。

关键词: 地埋电缆;电缆保护管;有限元;受力分析;人行道;绿化带;行车道;设计要点


0 引言


埋地敷设电力电缆相比于在路面架设杆塔和导线,具有占地面积小、敷设灵活、美化市容等优势 [1]。将电缆敷设于预先建设好的地下保护管中的安装方法,称为电缆保护管敷设。电缆保护管敷设保护电缆效果比直埋敷设好,电缆不容易受到外部机械损伤,占用空间小,且运行可靠 [2]。110 kV 及以下电力电缆在人行道下方敷设时,或运行维护条件较为可靠的情况下在行车道下敷设时,均可采用电缆保护管敷设方式 [3-5]。 
由于施工方式、材质、排列方式、埋深、土质类型、外部荷载 ( 土的竖向荷载及主动土压力、车辆荷载 ) 的不同,电缆保护管会产生不同的应力及变形。选取电缆保护管时应该考虑足够的安全系数,以尽量保证其在服役期间不被破坏,减少维修费用。 
张俊斌等 [6] 对管道覆土作用下埋地管道竖向土压力计算进行了研究。尤佺等 [7] 通过有限元分析及与美国 ASTM ( 美国材料实验协会,American Society of Testing Materials) 规范对比的方法,提出了简便的截面参数分析法。褚夫蛟等 [8] 通过现场实测与数值模拟对比的方法分析了大直径钢波纹管的力学特性。GB 50332—2002《给水排水工程管道结构设计规范》( 简称《管道结构规范》) [9] 提出了不同施工方式下土对管道作用的计算方式,而电力行业对电缆保护管的受力计算鲜有涉及。国内电力设计院大多根据电气专业要求及服役环境,结合工程实践经验直接进行规格选择使用,缺少力学分析环节。 

本文结合实际工程项目,利用有限元分析方法,对电缆保护管进行力学分析,为后续相近工程提供技术分析手段和实践经验。


1 人行道及绿化带下敷设


1.1 工程概况 
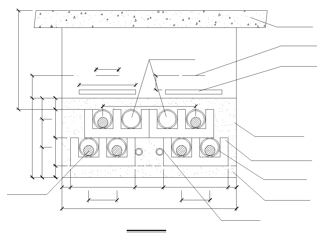
为了满足大马累地区的负荷要求,提高该地区的供电可靠性,中马双方合作开展马尔代夫马累岛 (Male 岛) 环网一期项目 ( 简称“该工程”),其中 132 kV 双回路电缆工程路径长度约 7 km,途经 Male 岛、中马友谊大桥、机场岛-扩建路,将 Male 岛、机场岛、Hulhumale 岛通过三个新建变电站形成环网,其中有 5 km 电缆需要用电力保护敷设于人行道及绿化带下方,其敷设横断面见图 1。该工程通过综合效益分析后,选用氯化聚氯乙烯 (chlorinated polyvinyl chloride,CPVC) 电缆保护管,保护管内直径为 150 mm。 
图片

图1 人行道或绿化带下方敷设横断面图(单位:mm) 


1.2 有限元分析模型 
典型设计埋深为 1 m,土的力学参数见表 1。 
考虑到电缆保护管可视为无限长且横截面和形状沿长度方向不变,故可将其简化为平面应变问题,仅取一截面进行分析。

表1 土的力学参数 

图片


单元类型:土体和电力保护均采用 PLANE2,6节点三角形 2D 实体单元。材料参数:土体本构模型采用 DP(Drucker-Prager) 准则,粘聚力 4.5 kPa,内摩擦角 28°,重度 19 kN/m3,弹性模量 12 MPa,泊松比 0.3;CPVC 采用双线性等向强化 (bilinear isotropic hardening,BISO) 准则,屈服强度 54 MPa,重度 15 kN/m3,弹性模量 2.5 GPa,泊松比 0.27。 
约束条件:底边完全固接,两侧边约束横向位移 (X 方向),顶边为自由端。 
荷载:根据 GB 50009—2012《建筑结构荷载规范》[10],人行道荷载取 3.5 kN/m2,换算成节点力施加于模型顶边。 
重力荷载:沿 Y 方向施加 9.8 m/s2 的重力加速度。 
有限元模型见图 2。
图片

(a) 几何模型

图片

(b) 单元网格模型

图2 有限元模型


DL/T 802.3—2007《电力电缆用导管技术条件》[11] 中内直径为 150 mm 的 CPVC 电缆保护管,有 SN8、SN12 和 SN16 这三种规格,对应的壁厚分别为 6.5 mm、8 mm 和 9.5 mm。
1.3 电缆保护管受力分析 
通过有限元分析方法,对实际工程中不同规格的 CPVC 电力保护管做力学分析 : 
1) 土压力对比分析 
《管道结构规范》中,对由设计地面开槽施工的管道,管顶竖向土压力标准值 Fsv,k 可按下式计算 :
图片
式中:Cd 为开槽施工土压力系数,与开槽宽度有关,一般取 1.2;γS 为回填土的重力密度 (kN/m3) ;H 为管顶至设计地面的覆土高度 (m) ;BC 为管道的外缘宽度 (m)。 
对于圆管,应以管外径 D1 替代 BC,得出竖向土的压力 Fsv,k 的计算公式 :
图片
按照公式 (2) 计算,埋深为 1 m 时,竖向土压力为 22.8 kPa。当只考虑土荷载作用时,土体的应力云图见图 3,1 m 埋深处土压力介于 16.4~19.1 kPa 之间,因为土之间存在摩擦,从而有土拱效应。因此,保护管实际受到的压力小于《管道结构规范》中公式的计算值,规范计算偏于保守。
图片

图3 土体的应力云图 


2) 电缆保护管受力分析 
对三种不同规格的电缆保护管进行有限元受力分析,得到土体的变形云图、保护管的变形云图、应力云图,仅列出 SN16 规格的电缆保护管云图,见图 4 ~图 6。
图片

图4 土体的变形云图(SN16)

图片

图5 保护管的变形云图(SN16)

图片

图6 保护管的应力云图(SN16) 


不同规格的保护管的力学分析结果汇总见表 2。在该工程的使用环境中,CPVC 电缆保护管的最大变形率为 1.07%,应力安全储备不低于 34 倍。

表2 保护管力学分析结果汇总表 

图片
由以上数值分析结果可以看出 : 
1)“品”字形排列的地埋保护管会受到上方土的覆土压力发生变形,最大变形发生在上方保护管的顶端,在保护管之间的接触界面及最大变形处产生最大应力。 

2) DL/T 802.3—2007《电力电缆用导管技术条件》所列的电缆保护管规格均能满足一般工程服役中的力学要求,有较高的安全储备,避免了后期运行阶段的破坏维修,减少了经济损失。后续可进一步结合更多的工程案例及运行监测数据,考虑到电缆保护管老化的影响,在留有一定安全储备的情况下,规范修订中对保护管的壁厚做一定的优化。


2 行车道下敷设


2.1 工程概况 
该工程中,约有 300 m 电缆需要用电缆保护管敷设方式敷设于行车道下方,并且业主提出了满足 40 t 货车承载的受力要求。参照《国家电网公司输变电工程通用设计》[12],当在行车道下敷设时,设置混凝土封包对电缆保护管做保护,根据防腐要求,混凝土等级为 C40,其敷设横断面见图 7。
图片

图7 行车道下方电缆敷设横断面图 


2.2 建立有限元模型 
将工程实际问题转化为平面问题,该工程中埋深 H 最小值为 0.4 m,即混凝土封包最小埋深为 0.3 m。 
单元类型:混凝土采用 PLANE2,6 节点三角形 2D 实体单元。 
材料参数:混凝土密度 2 450 kg/m3 ,弹性模量 30 000 MPa,泊松比 0.3,其他材料参数同上。 
约束:底边完全固接,两侧边约束横向位移 (X方向 ),顶边为自由端。 
荷载:根据《火力发电厂就变电所地下沟道设计手册》[13] 和 JTG D60—2015《公路桥涵设计通用规范》[14],在该工程中,汽车活荷载下的土压力为 135.9 kPa,动力系数 β 为 1.25。 
将覆土重作为永久荷载,汽车荷载作为可变荷载对混凝土封包进行受力分析。 
重力荷载:沿 Y 方向施加 9.8 m/s2 的重力加速度。 
建立有限元模型见图 8。
图片

图8 有限元模型 


2.3 混凝土封包受力分析 
混凝土封包的变形云图、应力云图见图 9、图10,混凝土封包的最大变形为 0.86×10-2 mm,混凝土封包的最大应力为 0.83 MPa,远小于混凝土的破坏强度。
图片

图9 混凝土封包变形云图 

图片

图10 混凝土封包应力云图 


从以上数值分析结果可以看出 : 
1) 受到上方覆土荷载及车辆荷载,混凝土封包会发生挤压变形,随着深度的增加,变形逐渐减小。每个混凝土封包孔都会在水平方向产生最大应力,随着深度增加,每个孔的最大应力减小。 
2) 在行车道下方借助电缆保护管敷设电缆,设有混凝土封包时,具有很高的安全裕度。

3) 采用混凝土封包作为受力结构时,电缆保护管主要起到模板、防水、防渗、减小电缆敷设阻力的作用,不计其力学贡献。


3 设计要点


设计电缆保护管敷设方案时需要实地考察,充分考虑自然条件及周围环境的影响,因地制宜制定设计方案,主要设计要点如下。 
1) 保护管内径及埋深 
为了保证电缆顺利穿管,保护管内径应是电缆外径的 1.2 倍至 1.5 倍,最小内直径不宜小于 100 mm;控制电缆、光缆的保护管内直径不宜小于 75 mm。 
为了保证电缆的安全运行,人行道下方敷设的保护管顶部距地面的距离应不小于 500 mm。一般地区不应小于 700 mm,适当增加埋深可以提高电缆的安全运行及供电可靠性,但埋深也不是越深越好,宜控制在 1 000 mm 左右。 
2) 保护管排列方式 
为了便于施工和后期的运行维护,每组保护管根数宜为 6~16 根,同时应根据城市道路特性,决定保护管的孔数和管子的排列形式。保护管的排列方式工程中常用长方形和正方形两大类,孔数以 3×4、3×5、4×4、3×6 等为主,部分特殊工程也可采用“品”字形排列方式。保护管敷设时,中间散热性能偏差,为了充分利用排管空间,中间孔宜以敷设控制电缆、光缆为主。 
3) 选择保护管材质 
目前,城市道路电力工程中,电缆保护管主要有玻璃钢保护管、CPVC 保护管、硬聚氯乙烯 (unplasticized polyvinyl chloride,UPVC) 保护管、纤维水泥保护管、改性聚丙烯 (modifified  polypropylene,MPP) 保护管等。在工程使用中,应结合工程特点,选择满足工程要求的保护管材质,主要考虑的因素有敷设难易程度、耐腐蚀性、机械强度、耐高温性、不产生涡流等。
4) 电缆工作井布置 

在进行电缆保护管敷设施工方案规划设计过程中,处于改变线缆方向、分支和电缆接头等部位,均应合理布设工作井。结合电缆牵张工艺,应设置牵张工作井,牵张工作井之间的距离不宜大于 100 m。


4 结语


本文通过对人行道或绿化带下、行车道下两种电缆保护管敷设方式进行有限元数值仿真分析,揭示了保护管和混凝土封包的受力机理,验证了工程设计人员经验做法的可靠性。 

采用电缆保护管敷设电缆,在投资经济性、施工便捷性以及对城市道路交通的影响等方面,均较隧道及电缆沟优越。为了保证电缆的正常运行及供电的可靠性,电缆保护管在选取时应该有足够的安全系数。做电缆保护管设计方案时,应充分考虑自然条件及周围环境的影响,因地制宜制定方案。


参考文献:

[1] 高献.城市电网工程中电力电缆敷设方式的选择[J].电力与电工,2011,31(2):28-30,39. 
[2] 李喆.浅谈电力电缆敷设的几种方式[J].黑龙江科技信息,2012(30):79. 
[3] 中华人民共和国住房和城乡建设部,中华人民共和国国家质量监督检验检疫总局.城市电力规划规范:GB/T 50293―2014[S].北京:中国建筑工业出版社,2014. 
[4] 中华人民共和国国家发展和改革委员会.城市电力电缆线路设计技术规定:DL/T5221—2016[S].北京:中国计划出版社,2016.
[5] 中华人民共和国住房和城乡建设部,中华人民共和国国家质量监督检验检疫总局.电力工程电缆设计规范:GB 50217—2007[S].北京:中国计划出版社,2007. 
[6] 张俊斌,孙占强.管道覆土对埋地管道竖向土压力计算与探讨[J].轻工科技,2019,35(2):114- 115,142. 
[7] 尤佺,缪林昌,董冬冬.钢波纹管的力学性能分析[J].东南大学学报(自然科学版),2017,47(6):1187-1194. 
[8] 褚夫蛟,曾水生,方文富,等.高填方大直径钢波纹管涵洞力学特性[J].东北大学学报(自然科学版),2016,37(9):1338-1342. 
[9] 中华人民共和国住房和城乡建设部,中华人民共和国国家质量监督检验检疫总局.给水排水工程管道结构设计规范:GB 50332—2002[S].北京:中国建筑工业出版社,2002. 
[10] 中华人民共和国住房和城乡建设部,中华人民共和国国家质量监督检验检疫总局.建筑结构荷载规范:GB 50009—2012[S].北京:中国建筑工业出版社,2012. 
[11] 国家能源局.电力电缆用导管技术条件第3部分:氯化聚氯乙烯及硬聚氯乙烯塑料电缆导管:DL/T 802.3—2007[S].北京:中国电力出版社,2007. 
[12] 国家电网公司.国家电网公司输变电工程通用设计[M].北京:中国电力出版社,2018. 
[13] 西北电力设计院.火力发电厂及变电所地下沟道设计手册[M].北京:中国电力出版社,1999. 
[14] 中华人民共和国交通运输部.公路桥涵设计通用规范:JTG D60—2015[S].北京:人民交通出版社,2015.


第一作者简介:

朱梦伟(1992- ),男,陕西咸阳人,硕士,工程师,主要从事输电线路结构设计工作。
下一条:BWFRP玻璃钢电缆保护管分析